Eingeschossiges Kleines Haus mit Satteldach und 3 Schlafzimmern
opis techniczny
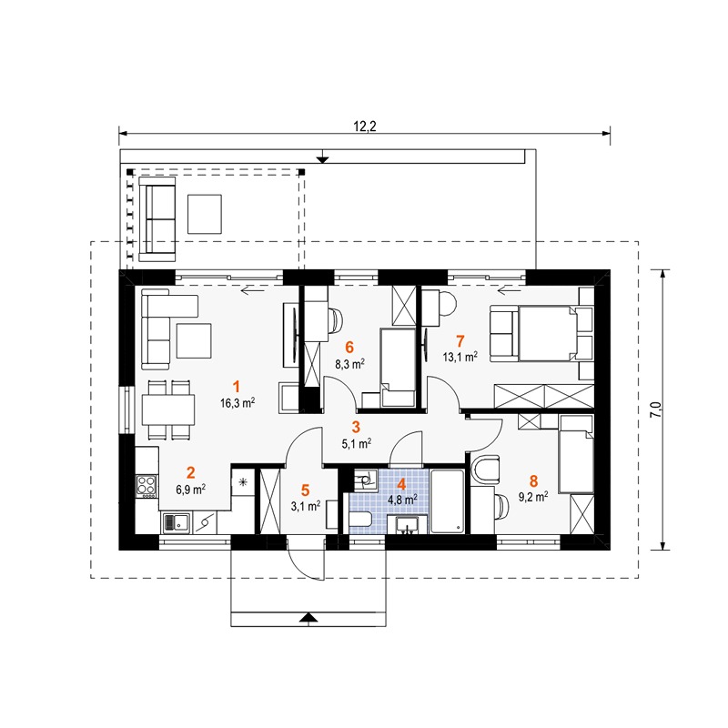
rzuty wszystkich kondygnacji
rzut więźby dachowej
rzut dachu
przekroje
elewacje
projekt konstrukcji
projekt instalacji sanitarnych
projekt instalacji elektrycznej
projekt instalacji wentylacji mechanicznej
teczka do przechowywania dokumentacji projektowej
dziennik budowy
tablicę informacyjną na budowę - po otrzymaniu projektu domu i wypełnieniu ankiety
zgodę na wprowadzenie zmian do projektu
dokumentację projektową w plikach pdf
Dieses Hausprojekt kann modifiziert werden, um es an den Lebensstil Ihrer Familie und/oder an die Gegebenheiten Ihres Grundstücks anzupassen.
Wenn Sie ein Projekt eines ausländischen Architekten ändern möchten, haben Sie zwei Möglichkeiten:
Sie schließen das Projekt mit dem Architekten zusammen ab (sofern die Sprachbarriere kein Problem darstellt) und erwerben dann eine modifizierte, elektronische, bearbeitbare CAD-Datei, die Sie an Ihren örtlichen Architekten weitergeben.
or
Sie kaufen eine CAD-Datei von dem Architekten, der das Projekt entworfen hat, geben die Datei an Ihren örtlichen Architekten weiter, ändern den Plan gemeinsam mit ihm und bestellen die Bauunterlagen.
