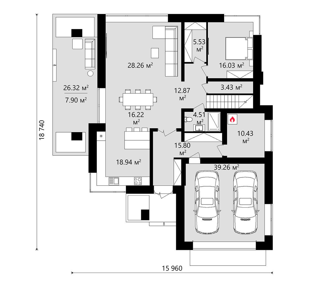
Stadtvilla mit Doppelgarage, Seitenveranda und 5 Zimmern
111
Dieses Hausprojekt kann modifiziert werden, um es an den Lebensstil Ihrer Familie und/oder an die Gegebenheiten Ihres Grundstücks anzupassen.
Wenn Sie ein Projekt eines ausländischen Architekten ändern möchten, haben Sie zwei Möglichkeiten:
Sie schließen das Projekt mit dem Architekten zusammen ab (sofern die Sprachbarriere kein Problem darstellt) und erwerben dann eine modifizierte, elektronische, bearbeitbare CAD-Datei, die Sie an Ihren örtlichen Architekten weitergeben.
or
Sie kaufen eine CAD-Datei von dem Architekten, der das Projekt entworfen hat, geben die Datei an Ihren örtlichen Architekten weiter, ändern den Plan gemeinsam mit ihm und bestellen die Bauunterlagen.

