Einfamilienhaus mit 3 Schlafzimmern und Büro im Erdgeschoss
rzut fundamentów
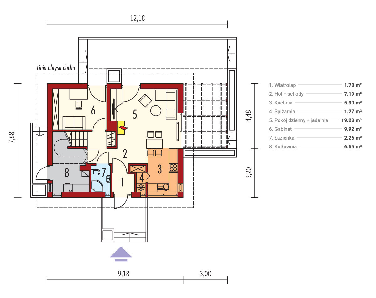
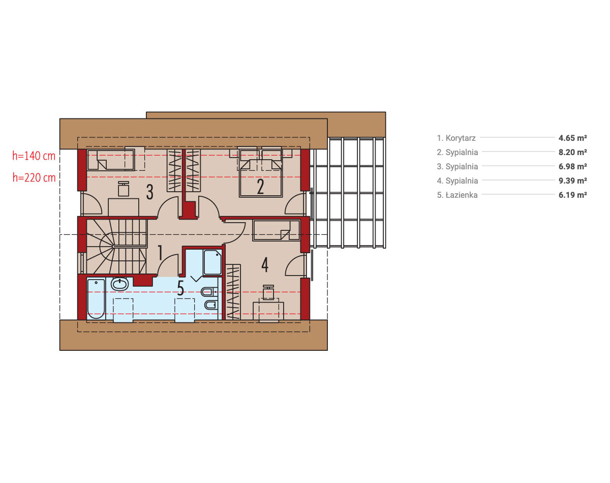
rzuty parteru i kolejnych kondygnacji
rzut stropów i nadproży
rzut więźby dachowej
rzut dachu
przekroje
zestawienie stolarki drzwiowej i okiennej
detale konstrukcji
projekty instalacji
opis techniczny części architektonicznej projektu
opis techniczny konstrukcji
opisy instalacji
charakterystykę energetyczną budynku
charakterystykę ekologiczną
informację o planie b.i o.z.
analizę porównawczą dwóch źródeł energii
oświadczenia projektantów
liczne informacje formalno-prawne
obliczenia konstrukcyjne
zestawienie elementów więźby dachowej
zestawienie materiałów do podstawowych instalacji sanitarnych, grzewczych i gazowych
zestawienie stali do zbrojenia elementów żelbetowych
widoki więźby i stropów w 3D
Dieses Hausprojekt kann modifiziert werden, um es an den Lebensstil Ihrer Familie und/oder an die Gegebenheiten Ihres Grundstücks anzupassen.
Wenn Sie ein Projekt eines ausländischen Architekten ändern möchten, haben Sie zwei Möglichkeiten:
Sie schließen das Projekt mit dem Architekten zusammen ab (sofern die Sprachbarriere kein Problem darstellt) und erwerben dann eine modifizierte, elektronische, bearbeitbare CAD-Datei, die Sie an Ihren örtlichen Architekten weitergeben.
or
Sie kaufen eine CAD-Datei von dem Architekten, der das Projekt entworfen hat, geben die Datei an Ihren örtlichen Architekten weiter, ändern den Plan gemeinsam mit ihm und bestellen die Bauunterlagen.

